Quadrilocale in vendita

Caselle Torinese, Via G. Guibert
€ 85.000
4 locali 4 locali
100 Mq 100 Mq
1 bagno 1 bagno

Quadrilocale in vendita

Caselle Torinese, Via G. Guibert

Descrizione annuncio

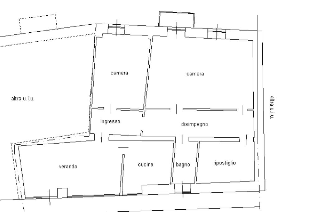
L’alloggio sorge all’interno di un cortile di corte ed è sito in una delle vie centrali del paese, rimanendo così comodo a tutti i servizi che quest’ultimo offre. L’appartamento si trova al primo piano e si sviluppa su un unico piano abitativo. La casa presenta ampi spazi ed ogni ambiente è particolarmente luminoso ed arioso. L’ingresso all’alloggio avviene tramite un balcone privato. Internamente l’immobile presenta la zona giorno composta dalla cucina abitabile e da un salotto. Grazie ad un generoso disimpegno è possibile poi accedere alla zona notte che attualmente comprende una camera singola ed una camera doppia dotata di balcone che può essere trasformata in due camere singole, in base alle esigenze di ognuno. Completa la soluzione un ampio ripostiglio ed il bagno finestrato dotato di doccia. Il riscaldamento è autonomo e i costi di gestione sono estremamente contenuti. Completa la proprietà un posto auto singolo all’interno del cortile condominiale. Sono già iniziati i lavori per il rifacimento di alcune parti comuni quali la facciata interna e il portone d’ingresso nella corte; la facciata esterna è appena stata rivista, il tutto a carico dell’attuale proprietà. Questa casa è ideale per chi cerca un alloggio, anche per uso investimento, in un contesto privato e tranquillo, ma comunque prossimo a tutti i negozi ed ai mezzi.

Mostra tutto

Nelle vicinanze

Trasporto pubblico Trasporto pubblico
Caselle Torinese
Caselle Torinese
150 m
Caselle Aeroporto
Caselle Aeroporto
1,8 Km
Caselle (Stazione/v. Audello)
Caselle (Stazione/v. Audello)
180 m
Caselle (Ospedale)
Caselle (Ospedale)
280 m
Ricariche auto elettriche Ricariche auto elettriche
U2 Supermercato Caselle Torinese | EnelX
540 m
Borgaro Torinese Biblioteca Civica | EnelX
2,2 Km
Borgaro Torinese Lanzo | EnelX
2,8 Km
Borgaro Torinese Gramsci | EnelX
2,9 Km
Scuole Scuole
Scuola primaria Collodi
70 m
Demonte
290 m
Scuola secondaria Demonte
290 m
Scuola scuola dell'infanzia Andersen
510 m
Scuola Primaria "Gianni Rodari"
550 m
Farmacia Farmacia
Bertolone
120 m
Farmacia
430 m
Farmacia Comunale 25
530 m
Biopharma
1,8 Km
Supermercati Supermercati
U2
520 m
Penny Market
640 m
Supermercati
680 m
Bennet
1,2 Km
CRAI
1,8 Km
Negozi Negozi
Il Buono di Me...
150 m
Camicissima
1,7 Km
Yamamai
1,7 Km
Blanco
1,7 Km
Camomilla
1,7 Km
Bar Bar
Bar
330 m
La Luna
2,8 Km
Ristoranti Ristoranti
Madama Moustache
260 m
Wok Lin
390 m
Totò e Peppino
650 m
antica zecca
1,4 Km
Trattoria Port Dij Gai
2,1 Km
Mostra tutto

Caratteristiche

Rif.:
61058477
Piano:
1 di 2
Posti auto:
1
Balconi:
2
Camere da letto:
2
Arredamento:
Assente
Mostra tutto
Prezzo Prezzo
€ 85.000
Rata mutuo Rata mutuo
€ 401 / mese
Spese annue Spese annue
€ 0
Proponi il tuo prezzoProponi il tuo prezzo
Immobile valutato con T·Valuta

Classe Energetica

E
E
E
E
E
E
E
E
E
EP globale non rinnovabile:
167.72 kW h/m² anno
EP globale rinnovabile:
0.00 kW h/m² anno
EP invernale del fabbricato:
EP estiva del fabbricato:
Anno di costruzione:
1900
Riscaldamento:
Autonomo
Tipo impianto:
A radiatori
Tipo alimentazione:
Metano

Ti interessa visionare l'immobile?

Fissa un appuntamento  Fissa un appuntamento

Richiedi informazioni

Clicca su Leggi per aprire l'informativa
* Questi campi sono obbligatori

Calcola il tuo mutuo

Semplice e senza impegno
Anticipo

( % )
Mutuo

( % )

pochi semplici passi

inserisci i tuoi dati
Questionario completato
Grazie per aver richiesto un appuntamento senza impegno con un nostro Consulente del Credito e Assicurativo.

Hai inserito correttamente tutti i dati necessari e a breve riceverai una e-mail con un link da convalidare per inviare i tuoi dati.
Affiliato
Immobiliare Rei Sas
Via Torino, 112 10072 Caselle Torinese (TO)

Il nostro staff


  • Rossella Turo
    Affiliata

  • Eleonora Listì
    Affiliata

  • Roberta Nardella
    Collaboratrice

  • Rebecca Savant
    Coordinatrice
Via Torino, 112 10072 Caselle Torinese (TO)
Zona: Caselle Torinese
Mostra su mappa
Affiliato
Immobiliare Rei Sas
Via Torino, 112 10072 Caselle Torinese (TO)

2025 Tecnocasa Franchising S.p.A. - P. IVA 08365160152 - Via Monte Bianco 60/A 20089 Rozzano (MI). Ogni agenzia ha un proprio titolare ed è autonoma. Privacy policy | Policy utilizzo | Cookie policy